| 所在地 | 東京都港区新橋2丁目16-1 ニュー新橋ビル 702A | ||
|---|---|---|---|
| 最寄り駅 | JR山手線「新橋」駅徒歩1分 | ||
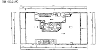
| 専有面積 | 29.66坪 | 天井高 | - |
| 構造 | SRC 地上11階・地下4階 | 所在階 | 7階部分 |
| 築年月 | 1971年02月 | 仲介手数料 | 賃料の1ヶ月分(別途消費税) |
| 賃料 | 979,110円 (税込) | 管理費 / 共益費 | (賃料に含む) |
| 敷金・保証金 | 無 | 礼金 | - |
| 敷引・償却 | |||
| 現況 | 空室 | 引渡 | 相談 |
| 契約期間 | 定借1年 | 契約満了時期 | - |
| 再契約料 | 0.5ヶ月 | 看板掲出料 | - |
| 成約状態 | 成約済 | ||
| 設備・条件 | エレベーターあり , 共用トイレ , 男女別トイレ , セントラル空調 |
||
| 備考 | 専用会議室付 無料WiFi完備 | ||
「ニュー新橋ビル 702A」のお問い合わせ
内覧希望・物件詳細などはこちらからお気軽にお問い合わせください。


























OA家具付きセットアップオフィス